Proponiamo in vendita bilocale come nuovo di 50 mq ubicato al piano terra di una palazzina di recente costruzione con un' ampia corte piastrellata di proprietà. Posizionato in una zona residenziale strategica a due passi dal mare. L'appartamento è così...
In zona tranquilla e ben servita, con ampio parcheggio adiacente al palazzo. L’appartamento, in buone condizioni, si trova al secondo piano di una palazzina curata ed è così composto: Ingresso accogliente Soggiorno luminoso Due ampie camere da letto...
Sei alla ricerca di un immobile in ottime condizioni, situato in una zona strategica e già pronto per generare una rendita? Questo appartamento a Torrette, Ancona, è la soluzione ideale per te. Caratteristiche principali: Situato in una posizione privilegiata,...
ZONA STAZIONE - Proponiamo in vendita ottimo appartamento di 90 mq circa come nuovo sito al terzo piano con ascensore davanti la stazione. Internamente è così diviso: ingresso su soggiorno, cucina, camera matrimoniale, studiolo, bagno al piano inferiore,...
Proponiamo in vendita casale nelle colline osimane nei pressi di San Biagio di Osimo - Località Montegalluccio. L'immobile principale ha una consistenza di 385 mq. su due livelli e non ha nessun vincolo paesaggistico pertanto si potrebbe demolire e ricostruire....
VIA TORRESI - Proponiamo in locazione locale di 50 mq. circa composto da 2 vani sito al piano terra con vetrina che gode di ottima visibilità e un bagno. Gli impianti sono in buone condizioni. Non...
BARACCOLA - Proponiamo in locazione locale catastalmente di mq. 204 al piano terra composto open space e da 3 vani dove si potrebbe ricavare uffici, l'immobile gode di ampia visibilità su strada principale....
POLVERIGI - Proponiamo in locazione appartamento di 81 mq sito su una palazzina bifamiliare così composto: ingresso-soggiorno con angolo cottura, camera matrimoniale, studio/cameretta, bagno. L'appartamento...
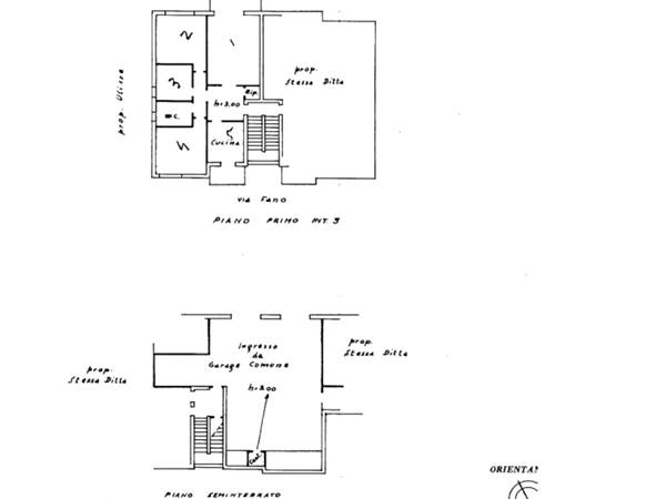
CENTRO - Proponiamo in vendita ampio appartamento sito al terzo piano di una palazzina composta da sole 6 unità abitative in zona centrale e molto servita. Situato a due passi a piedi dalla Basilica di...
Se la tua priorità è massimizzare lo spazio e trovare una soluzione estremamente funzionale, questo appartamento è ciò che stavi cercando! Perfetto per chi necessita di una camera in più per la famiglia...
Proponiamo in vendita ampio appartamento di 120 mq commerciali, situato al quarto piano di un edificio con ascensore. La posizione comoda in una zona servita e pianeggiante, perfetta per chi cerca comodità...